The Oak
Facade Options
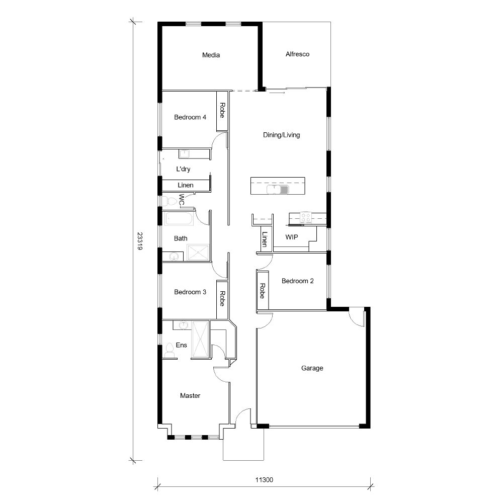
The Oak House Plan
4 Bedroom Plan

Plan Dimensions
| Bedroom 1: | 3.56mX4.036m |
| Bedroom 2: | 3.0mX3.08m |
| Bedroom 3: | 3.0mX2.915m |
| Bedroom 4: | 3.0mX2.916m |
| Living/Meals: | 4.57mX5.17m |
| Media: | 3.4mX5.12m |
| Kitchen: | 2.5mX4.03m |
| Garage: | 5.8mX6.0m |
| Floor area: | 200 m2 |
| Alfresco: | 13.5 m2 |
| Portico: | 4 m2 |
| Total Area: | 217.5 m2 |
| House Width: | 11.3 m2 |
| House Length: | 23.3 m2 |
