Ferntree
Facade Options
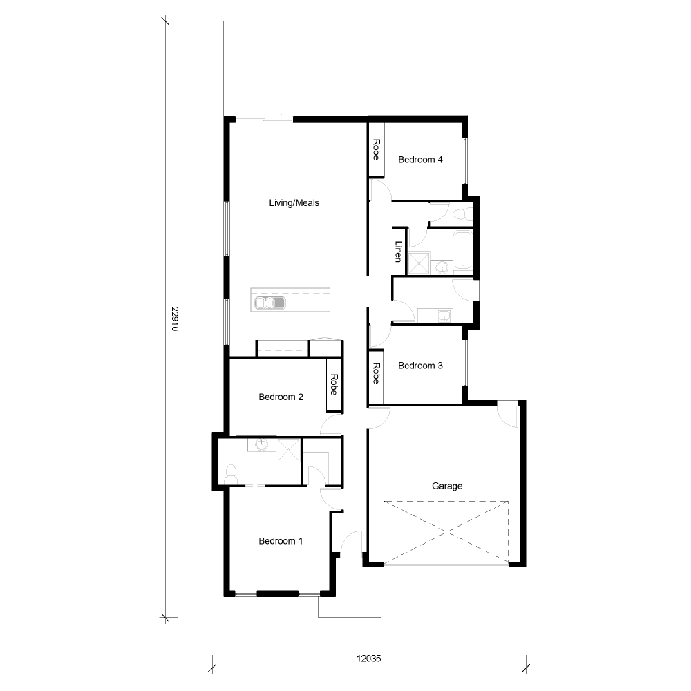
Ferntree House Plan
4 Bedroom Plan

Plan Dimensions
| Bedroom 1: | 3.8mX4.0m |
| Bedroom 2: | 3.0mX4.2m |
| Bedroom 3: | 3.0mX3.6m |
| Bedroom 4: | 3.0mX3.6m |
| Living: | 3.6mX5.2m |
| Meals: | 2.7mX5.2m |
| Kitchen: | 2.6mX4.2m |
| Garage: | 5.8mX6.0m |
| Floor area: | 183 m2 |
| Alfresco: | 20 m2 |
| Portico: | 4 m2 |
| Total Area: | 207 m2 |
| House Width: | 12.0 m2 |
| House Length: | 22.9 m2 |
