Scenic
Facade Options
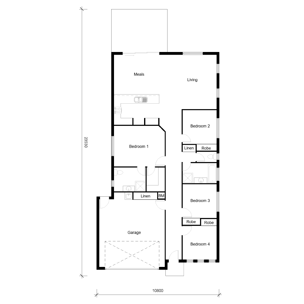
Scenic House Plan
4 Bedroom Plan

Plan Dimensions
| Bedroom 1: | 3.6mX4.5m |
| Bedroom 2: | 3.0mX3.0m |
| Bedroom 3: | 3.0mX3.0m |
| Bedroom 4: | 3.0mX3.0m |
| Living: | 4.5mX5.0m |
| Meals: | 3.5mX4.0m |
| Kitchen: | 4.0mX2.7m |
| Garage: | 5.8mX6.0m |
| Floor area: | 188.0 m2 |
| Alfresco: | 19.0 m2 |
| Portico: | 2.0 m2 |
| Total Area: | 209.0 m2 |
| House Width: | 10.8 m2 |
| House Length: | 22.9 m2 |
