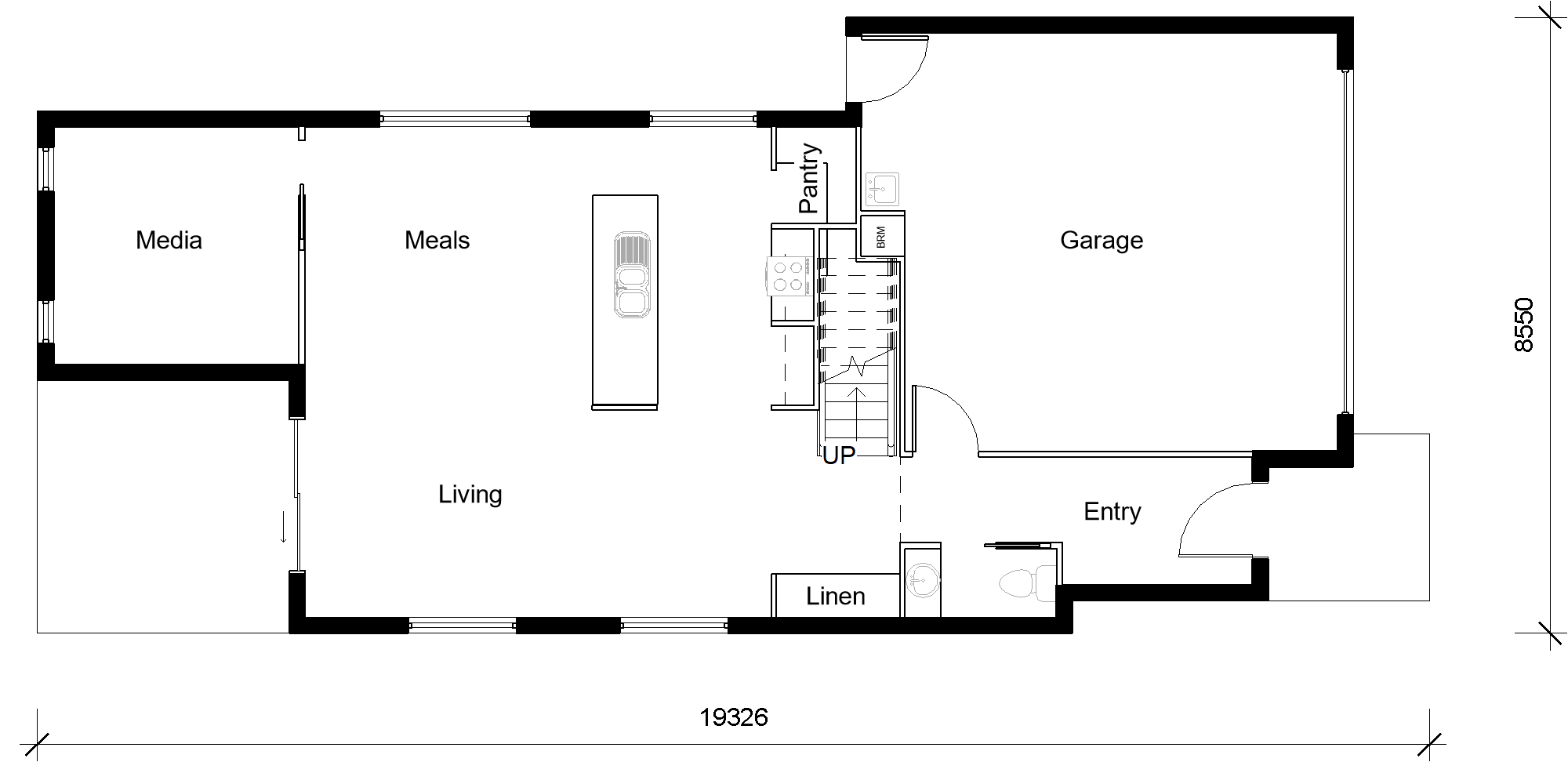
Be the envy of all your neighbours with this two storey, 4 bedroom, 2 bathroom home. With ample living area including a large alfresco, this home is not to be missed. Also speak to one of our sales consultants today about fully ducted air conditioning special!
Bondi 4 design features:
This to be built home comes as a full turn key package which includes, fencing to complete, turf to front yard, exposed aggregate driveway application, split system air conditioner to living and main bedroom, ceiling fans to all bedrooms, vertical blinds and fly screens to all windows and more! To move into this complete package at Riverbreeze, please contact Scott Fallon Today!
Whether your idea of fun is sailing, fishing in the bay, swimming, a round of golf or shopping till you drop, you’ll love the choices available to your family at Griffin Crest. This family focused community is ideally located in Griffin, just three minutes from Moreton Bay and all the aquatic adventures it offers, as well as being an easy commute to Brisbane’s CBD and the Sunshine Coast. Because of its enviable location, property experts have identified Griffin as an ideal location to invest in your family’s future. Several estates in the area have recently sold out in record time. In fact, our recent boutique Griffin Retreat estate sold 44 blocks in just a few days!
Quality land
This exclusive release development features 245 Impressive home sites in a premium residential estate. Each block is designed to maximise the benefits available from the elevation, breezes, views and proximity to parks and wildlife. There is a variety of blocks to choose from, including traditional and family sized lots.
Superb location for work and play!
· Launch your boat or tinny at the Pine Rivers boat ramp which is just 3 minutes away and enjoy all the fishing and aquatic options that Moreton Bay has to offer.
· Just 5 minutes to North Lakes shopping centre which has dozens of specialty shops as well as Myer, Target, Kmart, Big W and restaurants.
· Choose from many state and private schools including, Living Faith Primary, Kallangur Primary, Dakabin Primary, Dakabin High School, North Lakes College and Mueller College
· Just 30 minutes to Brisbane’s CBD by car or catch the train at Petrie and relax. The Murrumba Downs train station makes the CBD commute quick and easy.
· An easy 35-minute drive to the stunning Sunshine Coast beaches-great for a family day out!
· Enjoy a round of golf at the beautiful North Lakes Resort Golf Club followed by a delicious meal with family or friends.
· A short drive to several hospitals and healthcare facilities including Redcliffe and Prince Charles hospitals.
· Murrumba Downs Coles shopping centre is just a short walk, as is the local swimming pool.
· Enjoy bush-walking or horse riding through spectacular scenery at several nearby national parks including Mt Mee and Glasshouse mountains.
Terms and Conditions:
House and land to be purchased separately. Fixed price house and land package available on selected blocks. Price does not include legal fees such as conveyancing, transfer duty, or other ownership costs or acoustic/piering requirements. The builder is DJ Roberts (Constructions) Pty Ltd, QBCC LIC 1075339, ABN 54 110 631 331 ***Images are for illustration purposed only***


